N.2 2024 - Scientia | Dicembre 2024

Navigazione dei contenuti del fascicolo

La relazione tra resistenza al moto di un corpo immerso nell’acqua e profondità di immersione: gli esperimenti di Teodoro Bonati (1724-1820)

Arrigo Pisati

Università di Ferrara pstrrg@unife.it https://orcid.org/00009-0006-9881-8784

Received 5/07/2024 | Accepted 11/09/2024 | Published online 16/12/2024

Abstract

Presso la Biblioteca Ariostea di Ferrara si conservano ventiquattro volumi di manoscritti del matematico Teodoro Bonati (1724-1820). Fra le carte sono presenti alcuni appunti relativi a tre esperimenti svolti con l’assistenza di Luigi Gozzi (?-1830). Gli esperimenti, volti a studiare il rapporto tra la resistenza opposta dall’acqua al moto di un oggetto e la profondità, criticano nello specifico una teoria formulata nel 1771 dal matematico spagnolo Jorge Juan y Santacilia (1713-1773). Nelle pagine che seguono riordineremo gli appunti di Bonati e Gozzi, mostrando i pochi risultati ottenuti e ricavabili dal testo, i motivi che li spinsero ad occuparsi del problema, dando invece ampio spazio al funzionamento degli strumenti sperimentali. Essendo fonti inedite ma brevi, si è optato di presentare estratti anche corposi di testo originale, lasciando la descrizione degli esperimenti e delle macchine direttamente agli autori. 

English abstract

The Ariostea Library in Ferrara holds twenty-four volumes of manuscripts by the mathematician Teodoro Bonati (1724-1820). Among the papers, some notes concern three experiments carried out with the assistance of Luigi Gozzi (?-1830). The experiments aimed at studying the relationship between the resistance opposed by water to the motion of an object and depth, specifically criticize a theory formulated in 1771 by the Spanish mathematician Jorge Juan y Santacilia (1713-1773). In the following pages we will reorder the notes of Bonati and Gozzi, showing the few results obtained and deducible from the text, the reasons that pushed them to deal with the problem, giving ample space to the functioning of the experimental instruments. Since these are unpublished but short sources, we have chosen to present even substantial extracts of the original text, leaving the description of the experiments and the machines directly to the authors. 

Per scaricare l'articolo in pdf visita la sezione "Risorse" o clicca qui.

Teodoro Bonati e i suoi manoscritti

Teodoro Massimo Bonati (1724-1820) fu un importante scienziato e commissario idraulico, che insegnò per trent'anni presso l'Università di Ferrara. Fu autore di numerosi contributi sullo studio delle acque correnti, eseguendo anche esperimenti volti a confutare teorie, come quelle proposte dall’olandese Claude Leopold Genneté (1706-1782), dall’italiano Bernardino Ferrari (1744-1821) e dal francese Pons-Joseph Bernard (1742-1816).

Nel 1772 venne nominato professore di Meccanica e di Idraulica nell’Università di Ferrara, dove contribuì al percorso di riforma degli studi in atto da alcuni anni [Fiocca, Pepe, 1989] [Fiocca, 2023, p. 45-50]. Con l’avvento di Napoleone venne nominato membro della consulta degli Juniori e, nel 1804, professore di Idraulica nella Scuola di Idrostatica di Ferrara, con l’assistenza di Luigi Gozzi. La Scuola, nata in seguito alla soppressione dell’Università, formò alcuni giovani di talento, ma ebbe scarso riconoscimento giuridico e fu chiusa nel 1816.

Membro di numerose commissioni idrauliche, accademie e società scientifiche [Borgato, 2023] [Lugaresi, 2023], fu autore prolifico sino alla morte, sopraggiunta nel 1820, all’età di 94 anni. I suoi manoscritti vennero successivamente raccolti e rilegati in ventiquattro volumi e sono oggi conservati presso la biblioteca Ariostea di Ferrara.

Fra tali carte si conservano alcuni appunti relativi ad esperimenti inediti che Bonati condusse al fine di studiare il rapporto tra la resistenza opposta dall’acqua al moto di un oggetto immerso e la profondità di immersione. In particolare vi è una critica alla teoria formulata nel 1771 dal matematico spagnolo Jorge Juan y Santacilia (1713-1773). I manoscritti constano di tre fascicoli. Il primo è inserito nel volume VII delle raccolte Bonati, ed è composto da nove carte in cui è trascritto un estratto delle Disquisitiones Physico-Matematicae di Gregorio Fontana [1780] e dell’Examen maritimo di Jorge Juan [1771]. La grafia non è identificabile ma non è autografa di Bonati. I restanti fascicoli si conservano nel volume VIII della stessa raccolta. Uno è autografo di Bonati, è composto da dodici carte di appunti con numerosi ripensamenti su un possibile testo per una pubblicazione sull’argomento, nonché alcuni conti. Il secondo, autografo di Gozzi, è composto da quattro carte ed illustra, con molta dovizia di particolari, il funzionamento degli strumenti utilizzati negli esperimenti.

Le carte non sono datate. Il fatto però che Bonati sostenga che le esperienze II e III siano state eseguite da Luigi Gozzi «mio sostituto alla cattedra d’Idraulica», mentre la prima da Bonati stesso in Modena, permette di datarle intorno al 1804, anno in cui a Bonati venne conferita la cattedra di Idraulica, con Gozzi come assistente. In quell’anno, infatti, si assentò dall’insegnamento, essendo impegnato in una commissione idraulica a Modena [Biancardi, 2020, p. 20]. Gli strumenti descritti sono andati perduti, e non sono segnalati nell’inventario delle macchine della Scuola d’Idraulica di Ferrara, compilato nel 1808.

Contesto storico degli esperimenti

Nel 1785 venne pubblicata in Pavia, presso la stamperia di San Salvatore, un’edizione italiana del Traité élémentaire d'hydrodynamique di Charles Bossut, basata sulla prima edizione francese del testo. Curata da Giovanni Gratognini, era arricchita da una sezione in appendice [Bossut, 1785, p. 499-571], contenente il testo delle lezioni di idrodinamica tenute all’Università di Pavia da Gregorio Fontana, due articoli e uno scolio del medesimo autore e una memoria di Teodoro Bonati, già pubblicata l’anno precedente nelle Memorie della Società dei Quaranta [Bonati, 1784].

Lo scolio presentato da Fontana ripercorreva l’evoluzione storica dei saggi del quarto di secolo precedente, rivolti al problema della determinazione della resistenza subita da un oggetto in movimento all’interno di un fluido. L’autore mostrava come le teorie proposte fino ad allora fossero in contrasto fra loro e, dunque, fosse ancora impossibile comprendere la dipendenza della resistenza dalla forma dell’oggetto, dalla velocità di movimento e dalla profondità. Fontana diede ampio spazio allo studio di una teoria proposta da Jorge Juan y Santacilia nell’opera Examen maritimo [1771], dove raccolse i risultati di anni di studio sul movimento delle navi condotto per ordine del governo spagnolo.

Juan si proponeva di studiare analiticamente la resistenza subita orizzontalmente e verticalmente dai corpi immersi in un fluido e la forma che il corpo avrebbe dovuto avere affinché fosse minima [Juan, 1819, vol. 1, p. 214-272], ampliando il discorso anche ai corpi galleggianti e parzialmente immersi [Juan, 1819, vol.1, p. 273-285].

L’impianto teorico di Juan si discostava da quelli dei matematici del XVII secolo, che lo stesso autore ripercorse in un discorso preliminare anteposto al testo, nel quale ricavò i principi fallaci delle varie teorie:

Tutto l'errore perciò deve cadere nella supposizione, […] che le resistenze de' fluidi siano in ragione de' quadrati delle loro velocità, e de' quadrati de' seni d'incidenza. Questo principio, per quanto sospetto egli sia, è però ricevuto dai primarj Geometri, e Fisici dell’Europa [Juan, 1819, p. xiii].

Già le ricerche di vari autori (Newton, Huygens, Jakob Bernoulli) avevano evidenziato proposte alternative e Juan, dubbioso che fossero valide, decise di eseguire degli esperimenti che permettessero di costruire una nuova teoria coerente con l’osservazione empirica, trovando che

l'azione esercitata dall' acqua corrente contro una superficie […] dipende […] dalla maggiore profondità della sua immersione nello stesso fluido: di modo che la stessa tavola, o superficie, della forma d'un parallelogrammo rettangolo, prova resistenza minore, avendo orizzontale il suo lato maggiore, di quello, che se lo stesso lato sia verticale [Juan, 1819, vol. 1, p. xvi].

Da qui Juan, ragionando con oggetti a forma di parallelepipedo, ricavò nuove leggi, le quali vennero così riassunte da Fontana:

[Juan] trae […] alcuni canoni, i quali quanto sono singolari e inaspettati […] perché la forza, dice il Geometra Spagnuolo, non dipende soltanto dalla superficie colpita, […] ma ancora dalla sua maggior profondità dentro il fluido: le resistenze stanno a un dipresso come le radici quadrate delle altezze o profondità della tavola nel fluido. […] e pianta per canone, che le resistenze de' fluidi sono come le densità de' medesimi, come le superficie percosse, come le radici quadrate delle profondità di tali superficie dentro i fluidi, come le semplici velocità e come i semplici seni degli angoli d'incidenza [Bossut, 1785, p. 654-656].

Tuttavia:

questo non è ancor tutto (avverte il mentovato Autore), poiché ciò riguarda il solo caso che la superficie stia interamente immersa nel fluido, e che la parte anteriore del corpo sia simile alla posteriore: quando una parte della superficie si trova fuori del fluido allora risulta nella resistenza una nuova quantità, la quale non ha alcuna dipendenza dalla superficie urtata, e solo deriva dalla velocità senza però essere proporzionale alle semplici velocità, né ai loro quadrati, ma sibbene ai quadrato-quadrati di quelle [Bossut, 1785, p. 656].

Il tono con cui Fontana traccia i punti principali della teoria di Juan lasciano intendere che egli avesse non pochi dubbi sulla validità della stessa. Infatti, dopo aver mostrato le posizioni di Juan, Fontana presentò quelle contrapposte di Smeaton [Smeaton, 1759], D’Alembert [D’Alembert, 1752] e Bossut [Bossut, 1777] [Bossut, 1778a] [Bossut, 1778b], mostrandone le notevoli differenze da quelle dello scienziato spagnolo. Concludeva perciò:

Se dopo i penosi travagli di questi grand'Uomini resta ancora in questa delicata materia tanto d'incertezza e d'oscurità […] mal si apporrebbe il Pirronista, il quale volesse con ciò farsi giuoco della vantata evidenza della Matematica: Questa Scienza non crea, nè inventa i dati, di cui si vale, ma li prende dalle altre Scienze ad imprestito, e non è sua colpa, se queste non le somministrano ciò che ella domanda [Bossut,1785, p. 663-664].

L’esperimento di Bonati

Bonati, letto lo scolio, si convinse che

Lo stesso P[adre] Fontana non fosse troppo persuaso delle teorie del Juan. Che che ne sia della opinione del Fontana, io sono per addurre qui tre Sperienze[,] le quali tendono a far credere, che i corpi solidi mossi nell’acqua anche alla profondità di 35 piedi di Parigi sotto la superficie non soffrano dall’acqua una resistenza sensibilmente maggiore, che essendo mossi poco sotto alla superficie, e sicuramente ben lontano dalla ragione suddupplicata delle profondità.

Delle tre esperienze, la prima venne eseguita dallo stesso Bonati a Modena, mentre le restanti due da Gozzi a Ferrara. L’intenzione di Bonati era quella di descrivere le esperienze «dettagliatamente ed in modo che ognuno volendo potrà ripeterle» ma, salvo quelle di Gozzi che risultano già disposte in bella copia, i risultati di Bonati vennero solamente accennati.

Il primo esperimento (Esperienza I) era volto ad indagare la resistenza opposta al movimento di un oggetto immerso in acqua stagnante. Venne eseguito in uno dei pozzi di Modena, «famosi […] descritti dal Ramazzini» e può essere descritto nel seguente modo:

Figura 1: Taglio verticale del pozzo.

ABCD rappresenta la sezione verticale del pozzo. Il livello dell’acqua indicato da EF è misurato a 38 piedi parigini di altezza dal fondo DC. Viene posto un regolo AMB in cima al pozzo, dove M è il punto medio di AB.

In M è legata l’estremità di un «cordoncino di seta», alla cui altra estremità è posta una «palla di legno con entro una certa porzione di piombo [del] diametro di cinque pollici».

Il sistema è posto in equilibrio, immergendo la palla fino al punto G, che si trova un piede al di sotto del pelo dell’acqua. La palla è dunque lasciata libera di cadere per 17 piedi, sino al punto H e poi, dopo aver atteso che il sistema torni in equilibrio, si lascia cadere per altri 17 piedi, fino al punto I, misurando il tempo di entrambe le cadute.

La prima caduta avvenne in 712 secondi, mentre nel secondo tratto in 8 secondi. L’esperimento venne «replicato più volte […] [e] riuscì sempre assai prossimamente lo stesso».

Il primo esperimento di Gozzi

Il primo esperimento eseguito da Gozzi (Esperienza II) era intenzionato a valutare se la resistenza dell’acqua ad un corpo che si muove orizzontalmente, dipendesse dalla profondità.

Venne richiesto l’utilizzo di uno strumento «consimile a quelli del Cav[alier] Bordà». Jean Charles Borda aveva infatti realizzato una serie di esperimenti [Borda, 1763a] [Borda, 1763b], con cui studiare la resistenza dei fluidi. La macchina consisteva in una serie di pale installate su una ruota ed immerse in acqua, che venivano fatte ruotare grazie alla caduta di un peso legato ad una corda avvolta intorno alla ruota stessa.

Gli appunti di Gozzi descrivono con dovizia di particolari il funzionamento del proprio apparato.

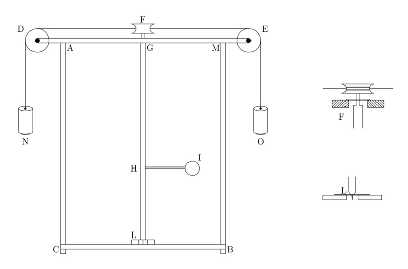
Fig. 2 - Apparato utilizzato nell’esperienza II con particolari della carrucola e del perno.

Il vaso AB ha la figura d’un cono troncato la cui base maggiore AM è di polici parigini 4334 e l’altra CB di polici 3734 misurati interiormente; la sua altezza verticale è di polici 33.

Nel centro L del fondo CB vi è situato un legneto con un foro piùttosto grande ed al disopra munito di una lastra di lato con altro foro minore del primo, e ciò per diminuire l’atrito del perno del[l’]asta che vi deve girare.

GL è un[’]asta cilindrica verticale di legno la quale ha un perno di fero nella sua parte inferiore L che puo girara nel sudescritto legneto L.

Quest[’]asta ha un altro perno superiormente che porta al disopra una carucola F il cui diametro e di polici 223. Per ritenere poi l’asta verticale ho meso un legno AM come diametro al[la] parte superiore AM nel cui mezzo evì un foro grande munito di una lastretta con foro più picola dove gira il perno e con esso la carucola F.

Alle estremità di questo legno vi sono poste due carucole mobilisime le quali servano a portare un cordone FEO il diametro di queste e di linee 24.

La parte superiore del[l’]asta ed inferiore e meglio esprese in L ed F L’asta poi verticale GL nella sua lunghezza ha diversi fori distanti uno dal altro polici trè ne quali si può impiantare un ferro HI normale alla asta sudetta; questo ferro HI porta alla sua estremità una paletta I di lastra di otone e di forma circolare del diametro di polici 4 dal centro poi di questa paletta sin al centro del asta GL vi è costantemente polici 12.

Posto ciò quando vuole fare un esperienza vi situa il vaso AB bene orizzontale e viene d’acqua s’impianta la paletta I a quel altezza che piace indi alla carucola F si avvolge due cordoni FDN, FEO uno per un verso e l’altro per l’altro i quali passando sopra le carucole rispettive D,E portano due pesi eguali N,O i quali lasciati in libertà col proprio peso svolgono i cordoni facendo cosi girarè l’asta verticale GL e con essa la paletta I[.] E così calcolato il tempo di una ho più rivoluzione con li stessi pesi N,O ma cosi la paletta I a diverse profondità sotto la superficie se ne puo valutare il rapporto delle resistenze. […] L’addoprare due pesi in vece di uno e stato in riflesso di diminuire l’atrito nella parte superiore.

Gozzi proseguì spiegando come aveva eseguito l’esperimento:

Empito il vaso AB sino in AM ed alzata la paletta HI sino ad avere il suo centro sotto la superficie del acqua polici 3 ho attacato in N ed O due pesi di trè oncie ognuno e posto tutto in quiete con un orologio a pendolo che batteva i secondi[,] ho lasciato in libertà i due pesi i quali hanno fat[t]o compiere un giro giro alla paletta I in diecisette secondi ho lasciato continuare il moto della paletta ed ha compiuto il secondo giro in secondi sedici e mezzo circa come pure un altro giro di seguito egualmente in sedici e mezzo circa cosìche essatamente ha compiuti trè intere rivoluzioni in cinquanta secondi: OH replicata l’esperienza ad acqua ferma otto volte ed i risultati sono stati conformi al primo[.] Ho meso poi in vece dei pesi N ed O di oncie trè ne ho messi altri due ognuno d’oncie 812 i quali, ad acqua ferma hanno fat[t]o compiere alla paletta I il primo giro in secondi otto pocco più ed il secondo in otto e mezzo ma essatamente in diecisette secondi due rivoluzioni replicata l’esperienza dieci volte ad acqua ferma i risultati sono stati conformi.

Indi ho abbassato successivamente la paletta I metendola cioè a polici 6,9[,]12,15,18,21,24,27 e 30 sotto la superficie è replicate le sperienze sudette ho sempre trovato che qualunque sia la profondità dove girri la paletta I sempre mi ha compito tre rivoluzioni quasi con moto equabile coi pesi picoli in cinquanta secondi e coi pesi maggiori sud[dett]i due rivoluzioni in diecisette. Le sperienze le ho replicate più di sei volte ognuna ad acqua ferma ed i risultati sono stati conformi.

Alla descrizione dell’esperimento seguono anche alcune osservazioni personali, utili per chi avesse dovuto riprodurlo successivamente. Gozzi segnalava in particolare che dopo aver lasciato cadere il peso e aver fatto ruotare le pale, l’acqua restava in movimento per un certo tempo. Prima di poter ripetere l’esperimento bisognava attendere che l’acqua fosse ferma, altrimenti

i trè giri si compivano in meno dei 50 secondi coi picoli pesi ed in meno dei 17 coi pesi maggiori e perciò che ho dovuto sempre aspettare una mezzora da un sperimento al altro.

Curiosamente osservava poi che, se veniva cambiato il senso di rotazione fra una prova e la successiva, il tempo necessario per compiere i tre giri aumentava. Gozzi provò inoltre a compiere esperimenti con pesi ancora maggiori ma il rapporto rimaneva invariato

senonche alla superficie si formavano dei picoli vortici e dei moti diversi ed ho giudicato troppo complicato il movimento da paragonarne gl[’]effetti con essatezza come ne precedenti.

Inoltre, il moto della pala risultava accelerato. Gozzi attribuì la causa al peso della corda che, srotolandosi, si aggiungeva a quello del pesetto; oltre alla differenza di attrito che

dopo il primo giro dev[’]essere minore avvendone per così dire spianata un po più la strada[.] tutto ciò credo sia la causa del picolo acceleramento della paletta contando pure per la massima il moto circolare del fluido il quale dev[’]esser maggiore nello terzo giro che nel primo.

Infine, osservava che il primo esperimento compiuto in assoluto

mi sì compi le tre rivoluzioni in 48 secondi ma li altri sempre in 50[;] ho meditato la causa e credo ne sia stato che l’asta nella prima sperienza non era ancora penetrata dal[l’]acqua e nelle sucesive ne era tutta imbevuta cioè d’un maggior peso accrescendone così la resistenza o attrito nella parte inferiore.

Bonati poteva concludere che:

Una ventola […] mossa nell’acqua da un peso ha impiegato lo stesso tempo in fare tre giri nell’acqua stagnante tanto quant’era sotto la superficie dell’acqua mezzo piede, che quand’era alla profondità di un piede, un piede e mezzo, o di due piedi.

Il secondo esperimento di Gozzi

Il secondo esperimento di Gozzi (Esperienza III) voleva valutare, similmente a quello eseguito da Bonati, se la resistenza dell’acqua dipendesse dalla profondità, nel caso di un moto verticale.

Lo strumento ideato da Gozzi era così costituito:

Fig. 3- Apparato utilizzato nell’esperienza III.

Il vaso 𝐴𝐵 è un prisma parallelepipedo retto che ha di base in quadrato di trè piedi parigini di lato e di altezza piedi dodici, misure interne, 𝐸 ed 𝐹 sono due carucole mobile una delle quali cioè la 𝐸 corrisponde al centro circa del vaso è l’altra 𝐹 sporge un pocco infuori del vaso. Un cordone 𝐺𝐹𝐸𝑀 attraversa le due carucole ed il capo 𝑀 dentro il vaso sostenta una coppa 𝐷 di una bilancia del diametro di polici quattro e l’altro capo 𝐹 sostenta un peso 𝐺 di oncie trè essteriormente al vaso qui segnato in piedi di parigi una scalla 𝐿𝑃 con una lastra 𝑃𝐻 che si puo fermare a qualunque altezza 𝐿𝑃.

Anche in questo caso Gozzi descrive con precisione gli esperimenti condotti:

Posta la bilancia al fondo del vaso tutto pieno d’acqua ho ridotto il peso 𝐺 _in 𝐿 _cosiché la 𝐺𝐻 _sia di un piedi indi messo in liberta ho osservato che il peso 𝐺 _ha scorso lo spazzio 𝐺𝐻 _d’un piede in sette secondi e peso la bilancia 𝐷 _ha pure scorso uno spazzi[o] d’un piede alinsu in sette secondi.

Sono andato successivamente accordiando il cordone 𝐸𝑀, (col avvertenza di lasciarvi attacato lo stesso cordone come si vede in 𝑅𝑆𝑇 _onde non scemare il peso dalla parte della bilancia) riducendo cioè il piatto sotto la superfici[e] piedi 11, 10, 9, 8, 7, 6, 5, 4, 3, due e uno ma sempre il peso 𝐺 _si trovava in 𝐿 _distante da 𝑃 _un piede posto tutto in quiete ho sempre trovato che per far percore[re] un piede di spazio alla sudetta bilancia con un peso di trè oncie ferraresi vi ha sempre impiegato minuti sette sia sotto la supperficie un piede sia sotto la supperficie dodici piedi.

Li stessi sperimenti li ho replicato in un pozzo con un egual apparato ma con acqua alta quindici piedi sopra il fondo ed ho trovato lo stesso con differenze di picole frazioni di secondi d’attribuirsi al attrito o altra circostanza ignota di mecanismo che mai manca nelle sperienze.

Seguono anche in questo caso delle osservazioni ad uso di successivi sperimentatori. Si segnala che un peso maggiore a tre once faceva «sviare» la direzione verticale della coppa D. Nuovamente, inoltre, nel primo esperimento svolto in assoluto si presentavano delle difformità:

Nelle prime sperienze il peso 𝐺 _mi percoreva lo spazzio 𝐺𝐻 _di un piede in sei secondi e meno pocco più indi costantemente in sette. Io ho giudicato che fosse che il cordone nel primo sperimento non essendo ancora imbevuto pesava meno che nelli altri sperimenti (parlo di quella parte di cordone che veniva sopra l’acqua particolarmente).

Bonati poteva così concludere che:

Una lastra orizzontale è stata alzata dentro l’acqua dallo stesso peso per l’altezza di un piede in tempi eguali tanto quand’era sotto la superficie p[ied]i 2, e p[ied]i 5, e p[ied]i 7 ec[cetera].

Conclusioni

Grazie agli esperimenti condotti, Bonati e Gozzi ritenevano di aver mostrato sperimentalmente che la resistenza dell’acqua non dipende dalla profondità, al contrario di quanto supposto da Juan.

Bisogna notare però che il testo conservato è parziale e manca di dati sperimentali precisi, verosimilmente segnati su altri folii andati perduti. Le conclusioni vengono infatti tracciate a partire da dati vaghi («secondi otto pocco più»). Probabilmente, trattandosi di una prima stesura di una memoria riguardante gli esperimenti, ne venne tracciata a grandi linee la struttura, rimandando l’inserimento dei dati precisi a una stesura successiva, mai realizzata, o non pervenuta fino a noi.

Contemporaneamente, il dibattito scientifico italiano proseguì, e diversi autori giunsero a conclusioni simili a quelle di Bonati e Gozzi, in particolare circa la fallacia della teoria del matematico spagnolo.

Nel 1808 Giuseppe Venturoli ebbe modo di confrontare le teorie di Newton, Romme e Juan. Convinto che

la Teoria di Juan [si debba trattare] siccome un ipotesi, nulla meno che la precedente [Romme]. Sarà della sperienza il decidere qual delle due s'avvicini di più alla vera legge della natura [Venturoli, 1809, p.167].

Venturoli presentò quindi diversi dati ricavati sperimentalmente, concludendo che la teoria del matematico spagnolo fosse falsa [Venturoli, 1809, p. 177-179].

Gli esperimenti di Venturoli, anche se vertenti sul medesimo argomento, si differenziano da quelli di Bonati, in quanto egli si concentra soprattutto sull’analizzare come la forma dell’oggetto influenzi la velocità, mentre Bonati trascura questo aspetto, analizzando unicamente il rapporto tra velocità e profondità nelle due direzioni del moto (verticale e orizzontale).

La discussione proseguì anche l’anno successivo, quando Giuseppe Avanzini dedicò una parte consistente del proprio trattato di Idrodinamica [Avanzini, 1810, p. 167-301] ad analizzare la teoria di Juan, trovandone a livello teorico diverse inconsistenze e decretandola, avvalendosi dei dati sperimentali ottenuti da Venturoli, «inesatta, imperfetta e pericolosa» [Avanzini, 1810, p. 246].

Non è chiaro perché Bonati e Gozzi non abbiano pubblicato i propri esperimenti, anche considerando che lo stesso Bonati aveva già reso pubblici diversi risultati sperimentali [Bonati, 1766] [Bonati, 1790] [Bonati, 1799] [Bonati, 1804]. Neanche l’età avanzata puòessere considerata una giustificazione, poiché egli si dedicò allo studio di problemi matematici sino a pochi giorni dalla morte [Pepe, 1992b, p. 33].